Now Available at :
Head case Creations LLC





Functional
T- Joint
Functional Elbow
Functional Straight
Made with
UL94-5VA Fire Rated Material

Functional Elbow

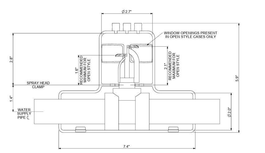
Interior & Exterior Dimensions

* Important: Please check all interior dimensions to ensure proper fit.
Designed for use with 1 inch nominal size water supply pipe.
Instructions for Installation:

Click Here

Functional Straight
Interior& Exterior Dimensions

* Important: Please check all interior dimensions to ensure proper fit.
Designed for use with 1 inch nominal size water supply pipe.

Instructions for Installation:
Click Here
Functional T - Joint

Interior & Exterior Dimensions

* Important: Please check all interior dimensions to ensure proper fit.
Designed for use with 1 inch nominal size water supply pipe.
Instructions for Installation:

Click Here
Sprinkler Head Protective Case Solid is recommended for use in areas where high levels of heat and flying debris are expected.

Solid Elbow

Solid Straight

Solid T - Joint
* Important: Please check all interior dimensions to ensure proper fit. Please refer to the interior dimensions associated with the above functional devices as they are exactly the same as the functional devices.
A MANDATORY FIRE WATCH IS REQUIRED AT ANY AND ALL TIMES THESE SOLID DEVICES ARE ATTACHED.

Functional Elbow
Part # EPCN
PRODUCTS

Functional Straight
Part # SPCN

Functional T - Joint
Part # TPCN
Sprinkler Head Protective Case Functional is a temporary device used to protect fire sprinkler heads during active periods of construction. The Sprinkler Head Protective Case functional provides superior physical protection to fire sprinkler heads maintaining their Functionality while allowing for a powerful discharge of water if an actual fire emergency were to occur while attached. A “ Fire Watch” is recommended while these devices are attached to fire sprinkler heads.

PRODUCTS


Solid Elbow
Part # EPCD
Solid Straight
Part # SPCD
Solid T - Joint
Part # TPCD
Sprinkler Head Protective Case Solid is a temporary device used to protect fire sprinkler heads during active periods of construction. The Sprinkler Head Protective Case Solid fully encloses the fire sprinkler head for protection from debris and heat. A Mandatory “ Fire Watch” must be established at any and all times these solid devices are attached to fire sprinkler heads.
Product Distributor

Colony Hardware Headquarters
269 South Lambert Rd
Orange, CT 06477
Instructional Videos
Functional Straight
Functional Elbow
Functional T- Joint
Instructional Video
Solid Straight
Solid Elbow
Solid T - Joint
About US
Head Case Creations LLC was formed in 2021 .
With 35 years of construction experience, John Leofanti Jr. is head of Product Development and Field Operations. He is a Grafton High School graduate and member of the Carpenter Local 336, formerly the local 107 out of Worcester, Massachusetts. Carol Ann Leofanti is Business Development and Marketing Manager. She is a Grafton High School graduate and LPN. Mark Ouellette serves as the company’s Product Manager and Patent Consultant. He is a graduate of Grafton High School and received Bachelor of Science (Sociology) and Master of Education (History) degrees from Worcester State College. He is a retired Grafton Middle School teacher and member of the novelty/rock band Slant 6 and the Jumpstarts. With over 40 years of product design experience Ken Holland is the company’s Design Engineer. He is a former Grafton resident who attended the Grafton Public Schools, is a graduate of St. John’s High School in Shrewsbury, Massachusetts and obtained a Bachelor of Science degree in Mechanical Engineering from the University of Massachusetts at Amherst.



Carol Ann Leofanti
John Leofanti Jr.
Mark Ouellette

Ken Holland


2021
Est.

www.sprinklerheadcase.com
WARNING: Cancer and Reproductive Harm-
www.P65 Warnings.ca.gov
Patent Published USPTO
Patent # US-20240009-496-A1